Creek Vistas is a multi-building complex in Sobha Hartland, Mohammed Bin Rashid City, Dubai. Minimalist design inspired by the Louvre and the Museum of Modern Art. Phenomenal craftsmanship and sleek interiors are the epitome of luxurious living. Creek Vistas is a modern-day work of art in itself, comprising 28-storey twin towers that offer breathtaking views of the serene Dubai Canal and other iconic landmarks.
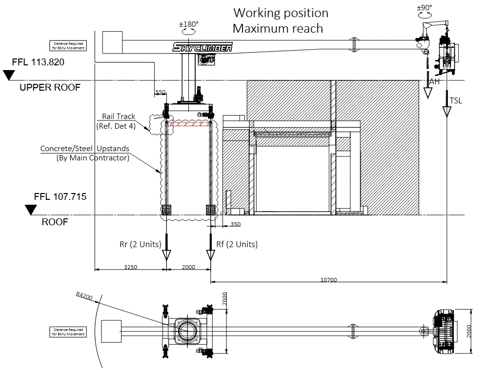
The BMU is a T-machine running on an elevated track, featuring a standard 2-man cradle and it has a GRU capacity of 200 kg. The tracks for the machine are installed on steel upstands and clear a high parapet wall of about 6m from the slab. This 15 ton machine works at a height of about 115m.
There was significant engineering for the restraint sockets, resulting in about 75000 sockets, divided into about 4 types. Aesthetic considerations were top priority, in line with the architect’s demands. Since 2016, ASE and SCL have worked very closely on multiple projects, cultivating a very close business and fruitful relationship.