The project’s scope of work consists of twin residential and commercial towers each comprising 29-storey located at Najmat Abu Dhabi in Reem Islands. The towers will have 3 levels common podium.
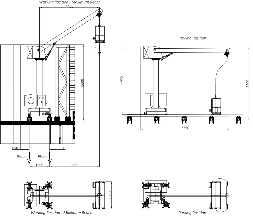
The BMU for this project clears a high parapet while having a narrow passage for the double rail track. The jib luffs up to clear the parapet and deploy the cleaners and luffs down in the parking position, completely hiding the machine while it’s not in use. The machine weighs 10 Tons.