Creek Vistas Reserve

A flagship development by Sobha Group, Creek Vistas Reserve at Sobha Hartland community in MBR City. This exclusive residential tower is crafted in a manner to offer the most inspiring views of the Dubai Creek, Downtown Dubai and that of Dubai Water Canal.

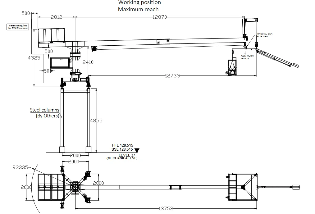
The BMU is a T-machine running on an elevated track, featuring a pantographic cradle of 1.8m reach and it has a GRU capacity of 250 kg. The tracks for the machine are installed on steel upstands and clear a high parapet wall of about 6m from the slab. This configuration allows both 117m tall towers to be effectively served. This 30 ton BMU has been serving the

Some areas of the façade that were not accessible by the BMU are being served by self-climbing cradle working from ASE design davits. A secondary, parapet mounted davit allows the GRU to be used along with the self-climbing cradle.

There was significant engineering for the restraint sockets, resulting in about 1500 sockets, divided into about 4 types. Aesthetic considerations were top priority, in line with the architect’s demands.

Since 2016, ASE and SCL have worked very closely on multiple projects, cultivating a very close business and fruitful relationship. Since 2016, ASE and SCL have worked very closely on multiple projects, cultivating a very close business and fruitful relationship